駅チカ JR中央本線 中野 徒歩5分!
女性に安心安全、モニタ付オートロック・防犯カメラ完備の賃貸物件です!
人気の外観タイル張りマンションタイプのお部屋♪
駅チカ JR中央本線 中野 徒歩5分!
女性に安心安全、モニタ付オートロック・防犯カメラ完備の賃貸物件です!
人気の外観タイル張りマンションタイプのお部屋♪



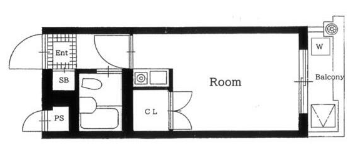
| 築年月 | 1990/03 | 面積 | 17.01m² |
|---|---|---|---|
| バルコニー | 向き | 東 | |
| 建物階数 | 地上4階 | 部屋階数 | 2階 |
| 部屋/区画番号 | 202 | 総戸/区画数 | |
| 建物構造 | RC | ||
| 間取内容 | 洋室 2階 1室 K 2階 1室 | ||
| 駐車場 | 取引態様 | ||
| 周辺環境 | [ショッピング施設] 西友中野店まで298m [飲食店] 餃子の王将中野店まで214m [飲食店] エクセルシオールカフェ中野サンモール店まで281m [コンビニ] セブンイレブン中野5丁目店まで88m [コンビニ] ローソン・スリーエフ中野五丁目店まで190m [病院] 医療法人社団健友会中野共立病院まで103m [販売店] サンドラッグ中野ブロードウェイ店まで298m [郵便局] 中野五郵便局まで100m | ||
| 設備・条件 | 分譲賃貸 ガスコンロ 給湯 エアコン オートロック TVドアホン 防犯カメラ エレベータ バルコニー タイル貼り B・T同室 ガスコンロ付 収納スペース シューズボックス 洗濯機置場 給湯 クッションフロア エアコン モニタ付オートロック 防犯カメラ バルコニー エレベーター |
||
| 物件番号 | 20250512002 | ||
| 特記事項 | ●○●○●○●○●○●○● 当ホームページに載せきれていない物件も沢山取扱いございます。 ポータルサイトや他社さんサイトで気になるお部屋がございましたら お気軽にご相談下さいね。 ●○●○●○●○●○●○● | ||